1415 Gerrard Street E Toronto, Ontario M4L 1Z5

7,260 sqft

$4,295,000

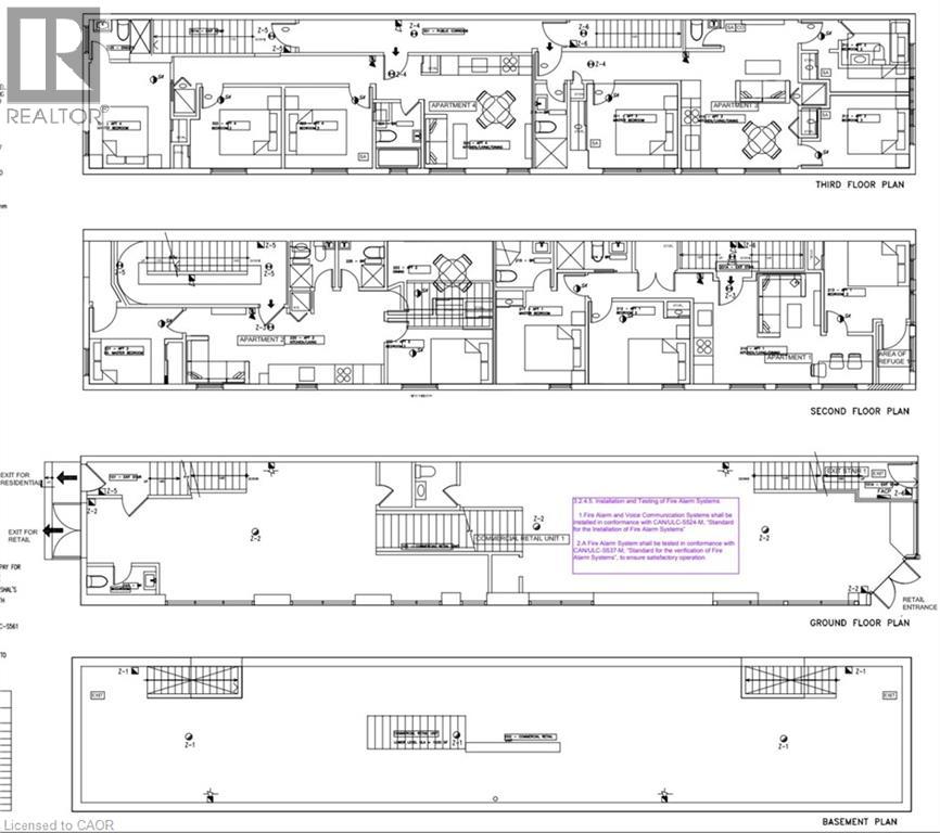
Turn-key mixed-use investment opportunity in prime downtown Toronto (1 Commercial + 5 Residential). Fully renovated building featuring a large main-floor commercial unit with full basement plus 5 high-end residential apartments above. Situated on a high-exposure corner lot offering excellent street presence. With over 7,000 sq ft of leased space with three on-site parking spaces, this a low-maintenance, cash flowing asset ideal for investors seeking a stable mixed-use property in a highly desirable urban location. Simply acquire and enjoy this fully upgraded, income-producing building. Contact us today for the full listing package! The seller is willing to provide a 75% Vendor Take Back (VTB) mortgage at 6.89% fully open for 2 years to qualified buyers. (id:49269)

Property Details

MLS® Number 40812208
Property Type Other
Amenities Near By Hospital, Public Transit, Schools
Features Southern Exposure, Visual Exposure, Paved Driveway

Building

Basement Type Full
Exterior Finish Aluminum Siding, Stucco
Foundation Type Poured Concrete
Stories Total 3
Size Exterior 7260.0000
Size Interior 7,260 Sqft
Utility Water Municipal Water

Land

Access Type Rail Access
Acreage No
Land Amenities Hospital, Public Transit, Schools
Sewer Municipal Sewage System
Size Depth 115 Ft
Size Frontage 18 Ft
Size Total Text Under 1/2 Acre
Zoning Description Cr2 (cl;r2*1573)

Utilities

Electricity Available
Natural Gas Available

https://www.realtor.ca/real-estate/29479310/1415-gerrard-street-e-toronto

Contact Us

Contact us for more information

Generating Captcha

Your Favourites

 

No Favourites Found