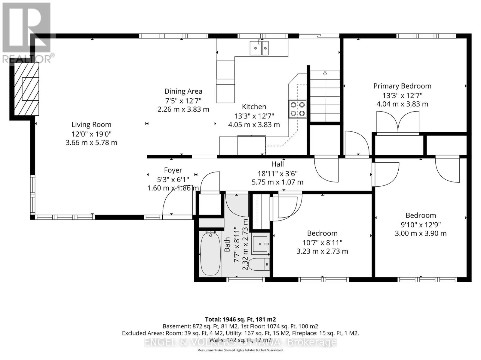
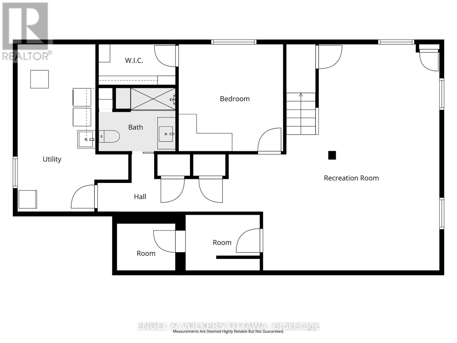
Welcome to this beautifully updated Campeau built bungalow in the heart of sought-after Elmvale Acres-where quality construction meets modern, open-concept living. This turnkey home offers 3+1 bedrooms, 2 full bathrooms, and a thoughtfully redesigned layout perfect for today's lifestyle.The main floor features a bright, open-concept kitchen with stylish finishes, seamlessly flowing into the living and dining areas ideal for entertaining or everyday family life. Large windows flood the space with natural light, while updated flooring and finishes create a clean, contemporary feel throughout. Three well-proportioned bedrooms on the main level provide flexibility for families, guests, or a home office. Downstairs, you'll find a fully finished lower level complete with a legal fourth bedroom and a full bathroom perfect for guests, extended family, teenagers, or multigenerational living. This versatile space also offers excellent potential for an in-law suite, private workspace, or additional living area. Step outside to a private, landscaped yard ideal for summer BBQs, kids, pets, or simply unwinding after a long day complete with a detached garage offering excellent storage, workspace, or parking flexibility. The lot offers both space and privacy, a rare find in such a central neighbourhood. Situated on a quiet street in a mature, family friendly community, you're just minutes to parks, schools, shopping, transit, and the General Hospital. Elmvale Acres is known for its strong sense of community and unbeatable convenience. Extensively updated and move in ready, this home reflects true pride of ownership throughout. Opportunities like this, fully finished, upgraded, and centrally located are in short supply. Ideal for families, downsizers, or investors seeking flexibility and value. Homes of this calibre in Elmvale Acres tend to attract strong interest-early viewings are recommended. Furnace 2017, AC 2022, Roof 2016, Driveway 2020, 1.5 car Garage 2020, Deck 2019 (id:49269)
2:00 pm
Ends at:4:00 pm
| MLS® Number | X13051728 |
| Property Type | Single Family |
| Community Name | 3702 - Elmvale Acres |
| Equipment Type | Water Heater - Tankless |
| Features | Guest Suite |
| Parking Space Total | 5 |
| Rental Equipment Type | Water Heater - Tankless |
| Bathroom Total | 2 |
| Bedrooms Above Ground | 3 |
| Bedrooms Below Ground | 1 |
| Bedrooms Total | 4 |
| Amenities | Fireplace(s) |
| Appliances | Water Heater - Tankless, Dishwasher, Dryer, Hood Fan, Stove, Washer, Wine Fridge, Refrigerator |
| Architectural Style | Bungalow |
| Basement Development | Finished |
| Basement Type | Full (finished) |
| Construction Style Attachment | Detached |
| Cooling Type | Central Air Conditioning |
| Exterior Finish | Brick |
| Fireplace Present | Yes |
| Foundation Type | Poured Concrete |
| Heating Fuel | Natural Gas |
| Heating Type | Forced Air |
| Stories Total | 1 |
| Size Interior | 1,100 - 1,500 Sqft |
| Type | House |
| Utility Water | Municipal Water |
| Detached Garage | |
| Garage |
| Acreage | No |
| Sewer | Sanitary Sewer |
| Size Depth | 81 Ft ,2 In |
| Size Frontage | 65 Ft |
| Size Irregular | 65 X 81.2 Ft |
| Size Total Text | 65 X 81.2 Ft |
https://www.realtor.ca/real-estate/29665272/754-cork-street-ottawa-3702-elmvale-acres
Contact us for more information