3 Bedroom
2 Bathroom
1,500 - 2,000 sqft
Bungalow
Fireplace
Central Air Conditioning, Air Exchanger
Forced Air
$859,900
Perfectly situated in one of Casselman's most desirable neighbourhoods, directly across from the Nation River, this exceptional home offers a rare combination of quality, comfort, and location. Meticulously maintained and showcasing true pride of ownership, the residence features a striking stone and brick exterior that wraps the entire home, delivering timeless curb appeal and lasting durability. The oversized lot offers exceptional privacy, surrounded by mature hedges and featuring plenty of green space for outdoor enjoyment. Inside, the main floor offers two spacious bedrooms along with a bright front room that works beautifully as a home office, reading room, or flexible living space. The heart of the home is the stunning, top-grade kitchen, expertly crafted by a renowned cabinet maker and designed to impress both in style and functionality. The fully finished basement expands the living space, offering an additional bedroom, a full bathroom, and two generous family rooms-one anchored by a cozy fireplace that creates the perfect setting for relaxing evenings or entertaining guests. This is a truly move-in-ready home where quality craftsmanship and thoughtful design shine throughout. (id:49269)
Property Details
|
MLS® Number
|
X12895906 |
|
Property Type
|
Single Family |
|
Community Name
|
604 - Casselman |
|
Equipment Type
|
Water Heater |
|
Parking Space Total
|
8 |
|
Rental Equipment Type
|
Water Heater |
Building
|
Bathroom Total
|
2 |
|
Bedrooms Above Ground
|
2 |
|
Bedrooms Below Ground
|
1 |
|
Bedrooms Total
|
3 |
|
Age
|
16 To 30 Years |
|
Amenities
|
Fireplace(s) |
|
Appliances
|
Garage Door Opener Remote(s), Dishwasher, Dryer, Microwave, Stove, Washer, Window Coverings, Refrigerator |
|
Architectural Style
|
Bungalow |
|
Basement Development
|
Finished |
|
Basement Type
|
Full (finished) |
|
Construction Style Attachment
|
Detached |
|
Cooling Type
|
Central Air Conditioning, Air Exchanger |
|
Exterior Finish
|
Brick, Stone |
|
Fireplace Present
|
Yes |
|
Fireplace Total
|
1 |
|
Foundation Type
|
Poured Concrete |
|
Heating Fuel
|
Natural Gas |
|
Heating Type
|
Forced Air |
|
Stories Total
|
1 |
|
Size Interior
|
1,500 - 2,000 Sqft |
|
Type
|
House |
|
Utility Water
|
Municipal Water |
Parking
Land
|
Acreage
|
No |
|
Sewer
|
Sanitary Sewer |
|
Size Depth
|
139 Ft ,2 In |
|
Size Frontage
|
75 Ft ,6 In |
|
Size Irregular
|
75.5 X 139.2 Ft |
|
Size Total Text
|
75.5 X 139.2 Ft |
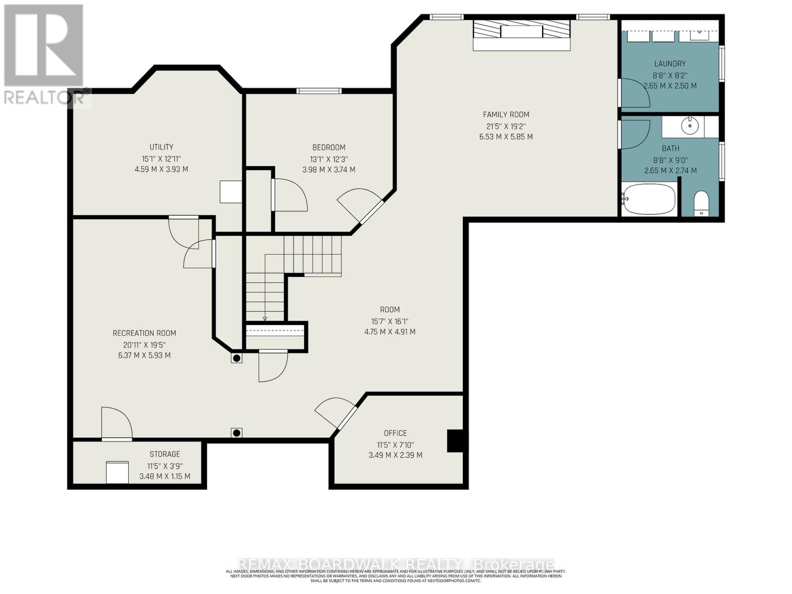
Rooms
| Level |
Type |
Length |
Width |
Dimensions |
|
Basement |
Bedroom 2 |
3.98 m |
3.74 m |
3.98 m x 3.74 m |
|
Basement |
Bathroom |
2.65 m |
2.74 m |
2.65 m x 2.74 m |
|
Basement |
Laundry Room |
2.65 m |
2.5 m |
2.65 m x 2.5 m |
|
Basement |
Utility Room |
4.59 m |
3.93 m |
4.59 m x 3.93 m |
|
Basement |
Office |
3.49 m |
2.39 m |
3.49 m x 2.39 m |
|
Basement |
Other |
3.48 m |
1.15 m |
3.48 m x 1.15 m |
|
Basement |
Recreational, Games Room |
6.37 m |
5.39 m |
6.37 m x 5.39 m |
|
Basement |
Other |
4.75 m |
4.91 m |
4.75 m x 4.91 m |
|
Basement |
Family Room |
6.53 m |
5.85 m |
6.53 m x 5.85 m |
|
Main Level |
Kitchen |
3.47 m |
5.06 m |
3.47 m x 5.06 m |
|
Main Level |
Eating Area |
5.42 m |
3.54 m |
5.42 m x 3.54 m |
|
Main Level |
Dining Room |
3.49 m |
4.59 m |
3.49 m x 4.59 m |
|
Main Level |
Sitting Room |
3.58 m |
2.9 m |
3.58 m x 2.9 m |
|
Main Level |
Foyer |
4.38 m |
3.3 m |
4.38 m x 3.3 m |
|
Main Level |
Primary Bedroom |
4.95 m |
4.23 m |
4.95 m x 4.23 m |
|
Main Level |
Bathroom |
5.7 m |
5.34 m |
5.7 m x 5.34 m |
Utilities
|
Electricity
|
Installed |
|
Sewer
|
Installed |
https://www.realtor.ca/real-estate/29485508/819-laval-street-casselman-604-casselman